skip to main content
Doppelwand erzeugen
Für das Erzeugen einer Doppelwand wählen Sie in der Funktion Wand > Zusatzleiste: Wandtyp Doppelwand und bestimmen die Einstellungen für die Elementierung über das Icon Einstellungen. Die hier angebotenen Einstellungen stammen aus den Werksdaten, die Sie für das aktuelle Projekt anpassen und auch als ein Set speichern können.
Bestimmen Sie dann in der Zusatzleiste die Einstellungen, wie z.B. die Wandstärke und -höhe, für die Architekturwand (Standardwand), die als Körper für die Doppelwand dient. Das festgelegte Material in der Zusatzleiste gilt nur für die Architekturwand. Das Material für die Schalen der Doppelwand bestimmen Sie über die Einstellungen der Elementierung (siehe oben).
Alle Einstellungen der Doppelwand wurden in Bezug auf die Architekturwand festgelegt. Sie erzeugen eine Architekturwand, auf die die Daten aus den Einstellungen der Elementierung wirken. D.h. wurde für die Schalen eine Bodenfuge bestimmt, hat die Architekturwand an dieser Stelle keine Elemente, die Bodenfuge wird abgezogen.
Zusätzlich können Sie die Produktionsreihenfolge einer Wand festlegen. D.h. die Schale der Erstfertigung (grün) mit der Schale der Zweitfertigung (rot) über das Umschalticon Erstfertigung links / Erstfertigung rechts tauschen.
Die Wand erzeugen Sie analog der Funktion Wand.
Kennzeichnung der Doppelwand
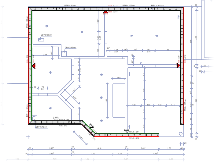
Jede gezeichnete Wand ergibt eine Fertigteilposition, die mittig der Schalenlänge auf der Erstfertigung mit einem Positionspfeil und den Abmessungen (Länge x Höhe der Schale) gekennzeichnet ist. Oberhalb des Pfeils wird das Gewicht der elementierten Wand (beide Schalen ohne Architekturwand) angegeben. Bei einer Korrektur der Wand, werden die Werte automatisch angepasst.
Die Kennzeichnung der Wand mit einem roten Pfeil bedeutet, dass ein Grenzwert aus den Werksdaten überschritten wurde und das Fertigteil so nicht hergestellt werden kann. Ist in den Einstellungen z.B. ein maximales Elementgewicht von 4 t hinterlegt, so erfolgt bei Überschreitung dieses Wertes eine rote Markierung des Textes. Gleiches gilt, wenn eine Länge bzw. Höhe überschritten wird.
Seitliche Transportanker
Erscheint während des Erzeugens neben dem Positionspfeil ein kleiner Pfeil - >, bedeutet dies, dass seitliche Transportanker in die Wand eingebaut werden. Diese werden automatisch eingebaut, wenn die Wandhöhe die in den Werksdaten hinterlegte Vorgabe überschreitet. Ob und ab welchem Wert die seitlichen Transportanker eingebaut werden sollen, ist in den Einstellungen der Doppelwand ersichtlich.
 
Rechts
 
Links
 
Nachträglich können Sie über die Objektdaten Decke / Wand die Lage der seitlichen Transportanker von Rechts nach Links ändern oder Keine Transportanker wählen:
 
Nach der Eingabe der Wände erhalten Sie eine Darstellung der Architekturwand plus der Elementierung einer Doppelwand mit automatischen Einbau von Gitterträgern und diversen Einbauteilen.
Über das Umschalticon Wand können Sie die Darstellung der Halbfertigteile wählen sowie über das Umschalticon Farbe Schalen die Farbe der Schalen ein-/ausschalten.
Bevor Sie die Innenwände eingeben, können Sie über die Zusatzleiste ein Set wählen, z.B. Standard-DW-Innen. In diesem sind bereits Daten gespeichert, wie z.B. die Erhöhung der Schalenkante mit dem Wert 0. Geben Sie jetzt die Innenwände ein, erhalten diese eine Höhe bis Unterkante Decke wie die Schale der Erstfertigung der Außenwand.
Automatische Wandverbindung / T-Stoß
Bei der Eingabe der Innenwand wird automatisch ein T-Stoß zur bereits bestehenden Wand erzeugt. Wenn die neue Wand genau rechtwinklig auf eine bestehende Wand trifft, wird die bestehende Wand automatisch geteilt, d.h. es entstehen zwei Wände. Wenn der Winkel nur geringfügig von 90 Grad abweicht, wird kein automatischer Stoß erzeugt.
Die 1 cm dicke Stoßfuge (Vorgabe aus den Werksdaten) der äußeren Schale liegt mittig zur neuen Wand. Die innere Schale wird bündig zur neuen Wand geöffnet. Die neue Wand erhält eine 1 cm dicke offene Fuge zur bestehenden Wand.
Bei einem nicht rechtwinkligen Stoß, müssen Sie diesen nachträglich korrigieren. Schalten Sie hierzu die Griffpunkte ein, selektieren die Wand und verschieben die Kante der Schale.