Makros, Einbauteile usw. erstellen
Bei der Erstellung von Schal- und Bewehrungsplänen kommt es häufig vor, dass Sie von einem Grundelement mehrere Varianten zeichnen müssen. Die Varianten unterscheiden sich dabei, z.B. in den Abmessungen, der Bewehrung oder den Einbauteilen.
Ein Zeichnungsmakro (Variante) erzeugen Sie aus einer vorhandenen Zeichnung oder durch Neukonstruktion.
Bei der Erzeugung des Makros versehen Sie die Maße des Zeichnungselements mit Namen, denen bei der Konstruktion einer Variante die neuen Maßwerte zugewiesen werden. Mit Verwendung der Maßwerte und der „Eigenintelligenz“ des Makros wird die neue Form berechnet und in die Zeichnung eingetragen.
Ein Zeichnungsmakro kann aus max. 50 Teilbildern, z.B. für Schnitte, Draufsicht, bestehen und, sofern vorhanden, mit oder ohne Bewehrung eingebaut werden.
Die Ergebnisse aus der CAD-Bearbeitung mit Makros können Sie in Form von Listen oder Dateien für die Kalkulation, Arbeitsvorbereitung, Fertigung usw. abrufen.
Verfügbar sind:

Einbauteillisten für eine Zeichnung

Einbauteillisten für ein Projekt

Schwerpunkte, Flächen, Volumen, Gewichte usw. der Bauteile, sofern vom Makroersteller vorgesehen

Elementierungslisten für eine Zeichnung

Elementierungslisten der Fertigteile für ein Projekt

Spezielle Daten für ein Produktions-, Planungs- und Steuerungssystem (PPS-System)
In den jeweiligen Verwaltungen können Sie die Makros strukturell in Kataloge einteilen.
Varianten eines Bauteils treten sehr häufig auf, insbesondere auch dann, wenn man die zu konstruierenden Bauteile einmal projektübergreifend betrachtet. Der Stahlbetonbalken über 2 Felder aus dem Projekt B ist oftmals die Variante eines Balkens aus dem Projekt A.
Beachten Sie bei der Untersuchung auf Varianten, die einen Makroeinsatz sinnvoll erscheinen lassen, dass diese Untersuchung nicht nur auf Bauteilebene sondern auch noch eine Ebene tiefer, auf der „Bildebene“ durchgeführt wird. Die einfachste Variante ist die Bilddarstellung der „Schnitte X-X“, von denen es noch mehr Varianten und damit noch mehr Einsatzmöglichkeiten, als für das gesamte Bauteil, gibt.
Beispiel: Varianten eines Stahlbetonbalkens
Im Beispiel beginnt die Konstruktion des Balkens Pos. K71 im Projekt mit einer leeren Zeichnung, in die mittels der bekannten Funktionen (Linie, Text, Maß, Bewehrung usw.) die Konstruktion für Pos. K71 eingetragen wird. Die Konstruktion der Pos. K72 (Variante!) beginnt nicht wieder bei „Null“, sondern durch Kopieren der Pos. K71 und dem Löschen, Verschieben und Einfügen usw. von Elementen.
Um die zeitaufwendige Neuerstellung einer Zeichnung zu verhindern kommt die Makrotechnik zum Einsatz, bei der nicht die Einzelelemente in die Zeichnung übertragen werden, sondern ganze Bauteile in Form eines Makros. Die Makros werden aus normalen Zeichnungen erstellt, in Katalogen verwaltet und durch Eingabe von Maß- und Bewehrungswerten in die neue Zeichnung übertragen.
Beispiel: Zeichnungserstellung mit Makros
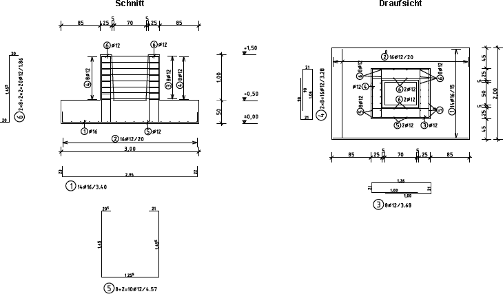
Fundament Pos. K1, B=3.0 m
Bei dem Einbau des Makros in die Zeichnung bleiben die speziellen Makroeigenschaften erhalten, was sich insbesondere bei der Konstruktion weiterer Varianten, den Möglichkeiten der Zeichnungsänderung (Bauteilabmessungen) und der Zeichnungsauswertung (Listen, Abmessungsauswertung wie Volumen und Fläche) als bedeutender Zeitfaktor erweist.
Makrotypen
Innerhalb von STRAKON stehen verschiedene Makrotypen zur Verfügung, wobei sich deren Anwendung nach dem jeweiligen Aufgabengebiet und den Ergebnissen, die zusätzlich zu der Zeichnung gewünscht werden, richtet.
Die Makros, die für die verschiedenen Makrotypen erstellt werden, unterscheiden sich vorallem in den Zusatzinformationen, die für eine weitere Auswertung, z.B. Listenerstellung, benötigt werden. Sie können ein innerhalb eines Typs erstelltes Makro auch als Grundlage für einen anderen Typen verwenden.
In dieser Beschreibung wird die Makrotechnik an folgenden Makrotypen erläutert: